Продам магазин 288.3 м.кв.

на карте
Объявление в архиве
35 000 000 руб.
Пенза , Ленинский, Московская ул, 102
Макаров Владимир
Контактные данные скрыты, так как объявление находится в архиве
Данные актуальны на 09.02.2024
Пожаловаться на объявление
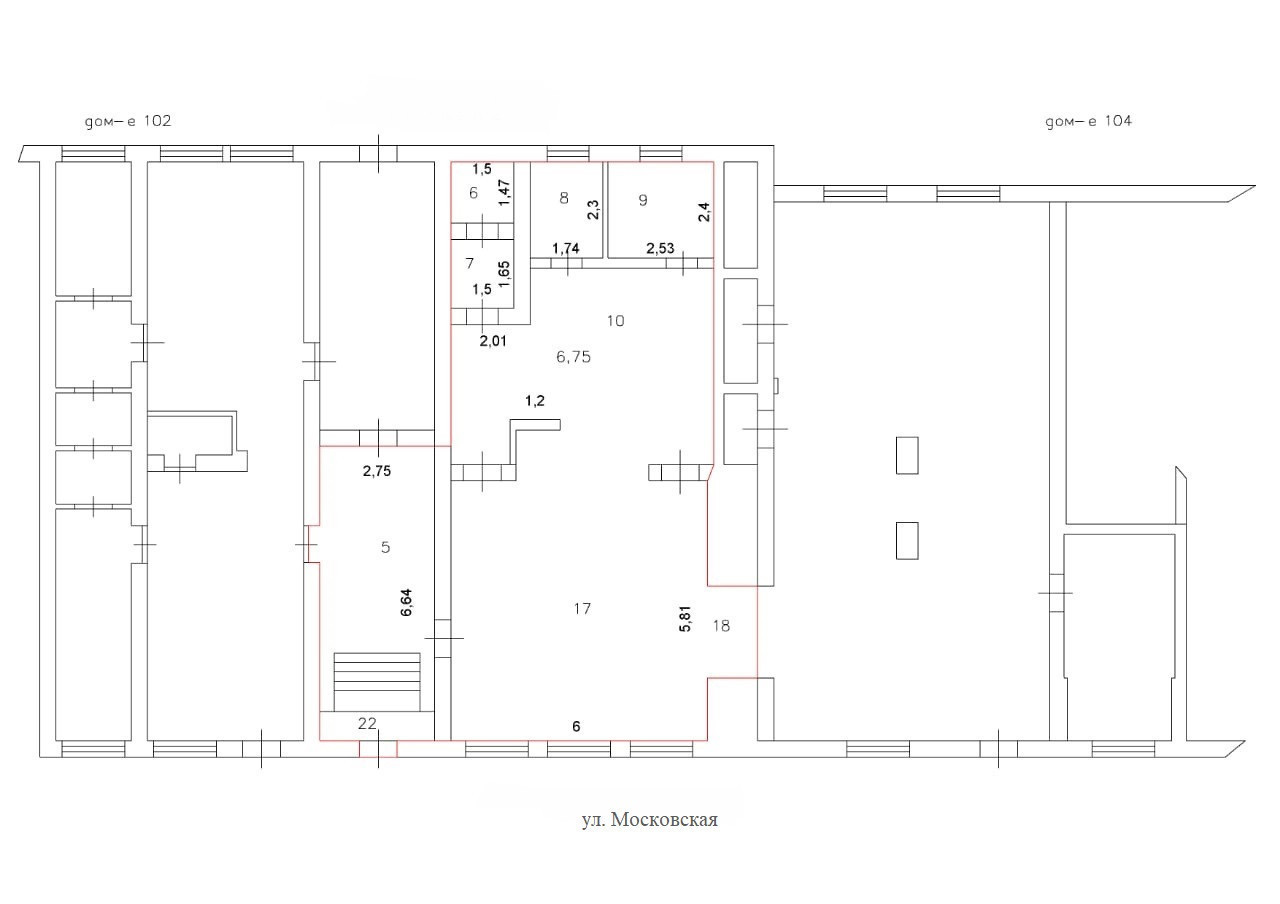
Арт. 59489335 Продаю помещение 289кв.м., 1-й этаж, ул. Московская. С арендатором! Продаю помещение с ремонтом, 1-й этаж 4-этажного жилого дома ул. Московская, 102. Технические характеристики:- 1-я линия по ул. Московская- площадь 288,3  кв м,- потолок – 3,3 м- три отдельных входных групп с пешеходной части улицы,- вентиляция,- электроснабжение 3 фазы с выделенной мощностью электроэнергии 40 кВт,- парковка,- места для размещения рекламных вывесок. Современный ремонт: пол - керамогранит 60см.Х60см, потолок «Армстронг», а так же натяжной ПВХ со встроенными светильниками, стены оштукатурены, покрашены. Входные двери и окна ПВХ. Имеется охранно-пожарная сигнализация. Проведен капитальный ремонт фасада в 2023 году. Здание не состоит в реестре памятников культурного значения. В настоящее время помещение сдано в аренду (вид деятельности – розничная торговля), что позволяет собственнику получать пассивный арендный доход. Срок окупаемости помещения – 13 лет. Возможно деление на три отдельных помещения площадью 76,6 кв.м., 110,8 кв.м. и 100,9 кв.м. и их продажа с обособленными входными группами. Документы готовы к продаже. Помещение не имеет никаких обременений и ограничений. Один собственник. Простая, быстрая сделка. Гарантирована юридическая чистота. Стоимость 35 000 000 руб. или 120 000 руб кв.м. (для Покупателя стоимость комиссионных 0%) Звоните прямо сейчас!

Дополнительная информация

Тип здания Бизнес-центр Этаж 1 Этажность 4 Количество комнат - Вход Отдельный Ремонт -
Интернет - Кондиционер - Вентиляция - Пожарная сигнализация - Красная линия - Входные группы -
Объекты, находящиеся поблизости
Банки, банкоматы
Сбербанк 71м
Российский капитал 159м
Тарханы 213м
Русфинанс банк 262м
Банк ВТБ (ПАО) 294м
Столовые, кафе
London Street 53м
Сакура 58м
Универ 58 72м
Шоколад.ру 116м
YES! PIZZA 157м
Медучреждения
Вита Экспресс 77м
Стоматология врачей Никитиных 114м
Вита Экспресс 293м
Вита Центральная 295м
Вита Центральная 332м
Динамика изменения цен на рынке недвижимости ?

За последние полгода средняя сумма за кв.м. не изменилась. Тендов к значительному изменению цены в последнем месяце не наблюдается.
По городу Пенза, в категории Торговая недвижимость » Магазины
За последние полгода средняя сумма за кв.м. не изменилась. Тендов к значительному изменению цены в последнем месяце не наблюдается.
Вход в личный кабинет